Ingatlan adatai Azonosító szám: 3138

Eladásra kínált ingatlan
Telki
23.06 millió Ft

Ház típus
iroda
Telek típus
építési/lakó telek

Ház alapterülete:
74 m2
Telek mérete:
1 m2
Nappalik száma:
-
Hálószobák száma:
-
Fürdőszobák száma:
-
Szintek száma:
-
Garázsok száma:
-

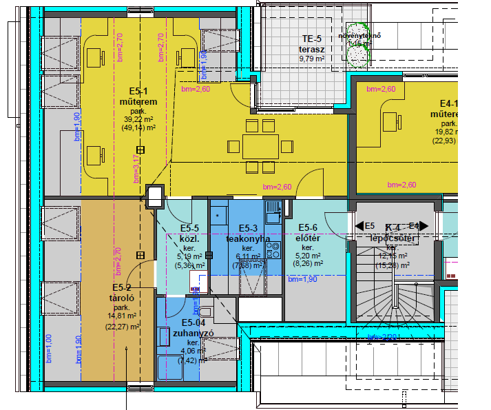
Telki Tücsök utcában (1300/2 hrsz) több funkciós épületben 4 lakás, 2 iroda, 1 kereskedelmi létesítmény, 2 műterem kerül kialakításra 2020 június 30.-i átadással.

A kiírt ár nettó árat tartalmaz, melyre 27%-os ÁFA jön még rá, mely visszaigényelhető.

TETŐTÉRI I R O D A / L A K Á S : 74,59 m2
A irodához/lakáshoz tartozik 9,79 m2-es terasz

Irodáknál, üzleteknél illetve műtermeknél az ár szerkezetkész állapotot tartalmaz.

Az ár tartalmaz:
-külső térelhatároló falak színezve, kompletten
-külső nyílászárók
-belső válaszfal
-vakolás (kivéve mennyezet)
-közmű beállások (órák bekötve)

Az ár nem tartalmazza:
-gépészet
-villanyszerelés
-festés, burkolás

Telki a természet elemeit hordozza magával. A tágas teraszokról kinézve minden irányba zöldet láthatunk a Zsámbéki medence szép dombjaival körbe rajzolva. Ettől leendő otthonaik könnyedek és szabad érzést fognak árasztani magukból.

Telki a budapesti agglomeráció nyugati szektorában Budapesttől 21 km-re, Budakeszitől 9 km-re nyugatra található a zsámbéki medence északkeleti peremén. Közvetlen szomszédja Budajenő, ezzel a településsel szinte már össze is épült. Másik közelebbi szomszédja 5 km-re déli irányba fekvő Páty.

Telki infrastruktúrája az agglomerációs települések közül kiemelkedően jó. Építési telkeink a Falu központjában találhatóak. Gyalogosan is közel van a Posta, élelmiszer áruház, óvoda, iskola, uszoda, orvosi rendelő,gyógyszertár. Összesen 1-2 perc séta alatt elérhető minden.

Parkolóhely ára bruttó 1.600.000 Ft/db

Tervezésnél egyedi és különleges hőszivattyúval szerelt klimatizált daikin klíma lett betervezve.

Igény esetén, egyedi egyeztetés alapján a befejezés megoldható.


22 éve foglalkozom Telki, Budajenő, Páty, Zsámbék, Biatorbágy, Etyek, Herceghalom, Tök, Perbál, Szomor, Gyermely, Mány ingatlanokkal.
Ha eladó, vagy kiadó ingatlana van, vagy más hasonló ingatlant keres kérem hívjon.

Ingatlanreferens

Telki
Telki , Telki, Budajenői út 4.
+36-30-999-8599
+36-30-999-8599