×
« Vissza a találatokhoz

Ingatlan adatai #3691

Ingatlan adatai Azonosító szám: 3691

Páty
Eladásra kínált ingatlan
77.9 millió Ft

Ház típus
lakás (tégla)


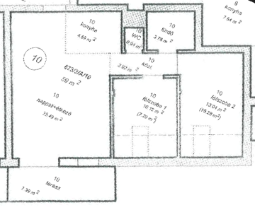
59 m2

-

-

-

1

-

-
59 m2   ház
  -  telek
  -  nappali
  -  hálószoba
1  fürdőszoba
  -   szintek
  -   garázsok

Környezete:
Kifejezetten csendes, beépült környezetben

Lakás: 59 m2
-2 hálószoba
-nappali-étkező-konyha
-fürdőszoba + külön WC
-erkély

Második emeleti, 2 hálószobás + nappali-étkezős-konyhás, kádas fürdőszoba, külön WC, teraszos lakás eladó.

Extrák:
-riasztó, kapu telefon
-felszerelt konyha-gépekkel együtt
-teraszon napernyő
-beépített bútorok
-légkondi
-Mindenhol redőny

A lakás újszerű, kifejezetten szép, világos, jól felszerelt. Környezete kiváló.
Pátyon a Levendula Öregek otthon közelében.

Beköltözés:
szerződéskötéstől számított 3 hónap.

A házban lévő 1 beállásos garázs igény esetén
hozzávásárolható.

Jelenleg egy nagyon kedves megbízható 3 fős családnak ki van adva , befektetésnek is kiváló.

Irodánk 24 éve foglalkozik Telki, Budajenő, Páty, Zsámbék, Biatorbágy, Budakeszi, Törökbálint, Etyek, Herceghalom, Tök, Perbál, Szomor, Gyermely, Mány ingatlanokkal.
Ha eladó, vagy kiadó ingatlana van, vagy más hasonló ingatlant keres kérem hívjon!
Jutalékom: 1-2.5 % + ÁFA

Ingatlanreferens

Telki
Telki, Budajenői út 4.


Email a hirdetőnek   Kattintson a megjelenítéshez


További ingatlankínálatunk

Páty
77.9 millió Ft
Páty
77.9 millió Ft
77.9 millió Ft
Páty
82 millió Ft
103829 m2
Páty
82 millió Ft
82 millió Ft
103829 m2
103829 m2